- País
- Estados Unidos
- Fabricante / Marca
- General Electric Co. (GE); Bridgeport CT, Syracuse NY
- Año
- 1941/1942
- Categoría
- Radio - o Sintonizador pasado WW2
- Radiomuseum.org ID
- 42514
-
- Brand: Musaphonic
Haga clic en la miniatura esquemática para solicitarlo como documento gratuito.
- Numero de valvulas
- 11
- Principio principal
- Superheterodino con paso previo de RF; ZF/IF 455 & 4300 kHz
- Gama de ondas
- OM, OC y FM
- Especialidades
- Tocadiscos-autom o no-no sabemos
- Tensión de funcionamiento
- Red: Corriente alterna (CA, Inglés = AC) / 105-125 Volt
- Altavoz
- Altavoz electrodinámico (bobina de campo) / Ø 12 inch = 30.5 cm
- Potencia de salida
- 12 W (unknown quality)
- Material
- Madera
- de Radiomuseum.org
- Modelo: LFC-1128 - General Electric Co. GE;
- Forma
- Consola con botonera.
- Ancho, altura, profundidad
- 35 x 35.5 x 16.5 inch / 889 x 902 x 419 mm
- Anotaciones
- Pilot lamps: 2 Mazda Nº44.
- Ext. procedencia de los datos
- Ernst Erb
- Procedencia de los datos
- Collector's Guide to Antique Radios 4. Edition
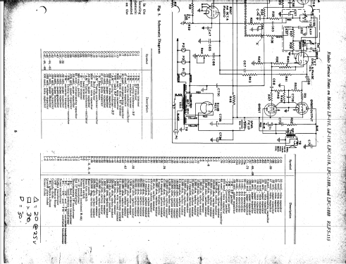
- Referencia esquema
- Rider's Perpetual, Volume 13 = 1942 and before
- Documentación / Esquemas (1)
- General Electric Radio Service Notes 1939-1942
- Documentación / Esquemas (2)
- Pre-War Consoles
- Documentación / Esquemas (3)
- Radio Retailing (Radio & Television R.) (October 1941 page 3, February 1942.)
- Otros modelos
-
Donde encontrará 2962 modelos, 2174 con imágenes y 2074 con esquemas.
Ir al listado general de General Electric Co. (GE); Bridgeport CT, Syracuse NY