Tuner AM/FM 61
Gaillard; Paris
- Pays
- France
- Fabricant / Marque
- Gaillard; Paris
- Année
- 1961
- Catégorie
- Radio - ou tuner d'après la guerre 1939-45
- Radiomuseum.org ID
- 336292
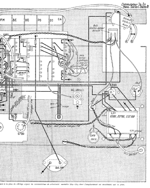
Cliquez sur la vignette du schéma pour le demander en tant que document gratuit.
- No. de tubes
- 11
- No. de transistors
- Principe général
- Super hétérodyne avec étage HF; FI/IF 480/10800 kHz; 2 Etage(s) BF
- Circuits accordés
- 7 Circuits MA (AM) 11 Circuits MF (FM)
- Gammes d'ondes
- PO, GO, 2 x OC et FM
- Tension / type courant
- Alimentation Courant Alternatif (CA) / 110; 125; 145; 200; 240 Volt
- Haut-parleur
- - Pour casque ou amplificateur BF
- Matière
- Boitier en bois
- De Radiomuseum.org
- Modèle: Tuner AM/FM 61 - Gaillard; Paris
- Forme
- Modèle de table avec boutons poussoirs.
- Dimensions (LHP)
- 515 x 210 x 275 mm / 20.3 x 8.3 x 10.8 inch
- Remarques
-
Ce tuner offre les possibilités suivantes :
1° La réception des émissions monaurales AM et FM.
2° La réception des émissions stéréophoniques diffusées avec un canal en AM et un canal en FM.
3° Après adoption par la R.T.F. d'un système stéréo sur un seul émetteur FM, il pourra être complété par un décodeur dont l'emplacement est prévu sur le châssis.
4° La réception simultanée de deux émissions différentes (une en AM, une en FM).Caractéristiques générales :
* 11 lampes + 4 diodes au germanium. Réglage séparé sur AM et FM par démultiplicateur à embrayage magnétique.
* 2 étages de sortie à charge cathodique, avec niveau de sortie réglable séparément pour chaque canal.
* Etage amplificateur haute fréquence accordé en AM et bobinages spéciaux blindés sur la position antenne.
* Les gammes PO et GO peuvent être également reçues sur cadre ferrite fixe incorporé.
* Amplificateur moyenne fréquence à sélectivité variable à 3 positions : 6 KHz (bande étroite), 9 kHz (moyenne) & 16 kHz (bande large) à — 6 dB.
* Platine du récepteur FM entièrement indépendante, précâblée et préréglée.
* Sensibilité (0,7 µV) pour un rapport signal/bruit de 20 dB.
* Bande passante 300 kHz.
* Etage BF de sortie en cathode follower.Ebénisterie noyer, acajou, frêne, chêne ou merisier, Prix : 979 FRF.
Châssis nu 490 x 170 x 265 mm. 7,5 kg. Prix : 862 FRFAttention : La dernière lampe pour la basse fréquence est une 12AU7 (ECC82). Le schéma mentionne cependant un ECL82.
- Poids net
- 10 kg / 22 lb 0.4 oz (22.026 lb)
- Prix de mise sur le marché
- 979.00 FRF
- Littérature
- Le Haut-Parleur (N°1037 de mars 1961 pages 39 à 53.)
- Auteur
- Modèle crée par Jean-Pierre Ambroise. Voir les propositions de modification pour les contributeurs supplémentaires.
- D'autres Modèles
-
Vous pourrez trouver sous ce lien 54 modèles d'appareils, 46 avec des images et 40 avec des schémas.
Tous les appareils de Gaillard; Paris