- Paese
- Spagna
- Produttore / Marca
- Philips Ibérica, COPRESA, Compañía de Productos Electrónicos, Miniwatt tubes, SELEZ; Madrid, Barcelona
- Anno
- 1980 ??
- Categoria
- Radio (o sintonizzatore del dopoguerra WW2)
- Radiomuseum.org ID
- 170077
Clicca sulla miniatura dello schema per richiederlo come documento gratuito.
- Numero di transistor
- 17
- Principio generale
- Supereterodina (in generale); ZF/IF 460/10700 kHz
- Gamme d'onda
- Onde medie (OM) e MF (FM).
- Particolarità
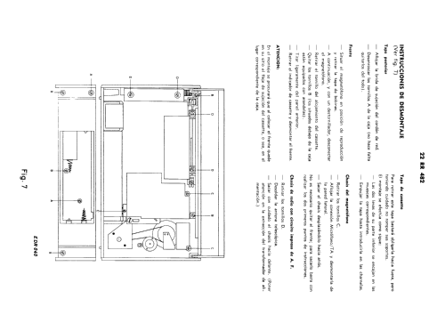
- Registratore o riprod a cassett
- Tensioni di funzionamento
- Rete / Batterie (ogni tipo) / 220 / 5 x 1,5 Volt
- Altoparlante
- AP magnetodinamico (magnete permanente e bobina mobile)
- Materiali
- Plastica (non bachelite o catalina)
- Radiomuseum.org
- Modello: 22-RR-482 - Philips Ibérica, COPRESA,
- Forma
- Apparecchio portatile > 20 cm (senza la necessità di una rete)
- Dimensioni (LxAxP)
- 305 x 175.5 x 75 mm / 12 x 6.9 x 3 inch
- Annotazioni
- Listado un único semiconductor por tipo.
- Fonte dei dati
- -- Original-techn. papers.
- Autore
- Modello inviato da Miguel Bravo-Cos. Utilizzare "Proponi modifica" per inviare ulteriori dati.
- Altri modelli
-
In questo link sono elencati 638 modelli, di cui 532 con immagini e 469 con schemi.
Elenco delle radio e altri apparecchi della Philips Ibérica, COPRESA, Compañía de Productos Electrónicos, Miniwatt tubes, SELEZ; Madrid, Barcelona