- Land
- Tschechoslowakei
- Hersteller / Marke
- Philips akc. spol., Praha-Hloubetin
- Jahr
- 1936/1937
- Kategorie
- Rundfunkempfänger (Radio - oder Tuner nach WW2)
- Radiomuseum.org ID
- 234422
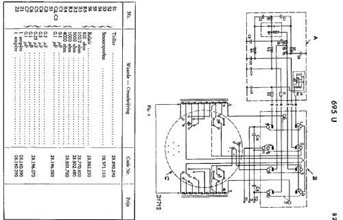
Klicken Sie auf den Schaltplanausschnitt, um diesen kostenlos als Dokument anzufordern.
- Anzahl Röhren
- 5
- Hauptprinzip
- Superhet allgemein; ZF/IF 128 kHz
- Wellenbereiche
- Langwelle, Mittelwelle und Kurzwelle.
- Betriebsart / Volt
- Allstromgerät / 110; 125; 150; 200; 220; 240 Volt
- Lautsprecher
- Dynamischer LS, keine Erregerspule (permanentdynamisch)
- Material
- Gerät mit Holzgehäuse
- von Radiomuseum.org
- Modell: 695U-14 - Philips akc. spol., Praha-
- Form
- Tischgerät-gross, - Querformat (breiter als hoch oder quadratisch).
- Abmessungen (BHT)
- 460 x 385 x 280 mm / 18.1 x 15.2 x 11 inch
- Bemerkung
-
Wie 695A-14 jedoch mit der Möglichkeit für Gleichstromspeisung über Wechselrichter 7926.
- Literatur/Schema (1)
- -- Original-techn. papers.
- Autor
- Modellseite von Wolfgang Bauer angelegt. Siehe bei "Änderungsvorschlag" für weitere Mitarbeit.
- Weitere Modelle
-
Hier finden Sie 162 Modelle, davon 137 mit Bildern und 125 mit Schaltbildern.
Alle gelisteten Radios usw. von Philips akc. spol., Praha-Hloubetin