Spezialsuper 50 SB391GW(L) (SB 391 GW(L))
Siemens (& Halske, -Schuckert Werke SSW, Electrogeräte); Berlin, München
- Paese
- Germania
- Produttore / Marca
- Siemens (& Halske, -Schuckert Werke SSW, Electrogeräte); Berlin, München
- Anno
- 1949/1950
- Categoria
- Radio (o sintonizzatore del dopoguerra WW2)
- Radiomuseum.org ID
- 5272
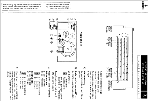
Clicca sulla miniatura dello schema per richiederlo come documento gratuito.
- Numero di tubi
- 3
- Principio generale
- Supereterodina con reazione; ZF/IF 468 kHz
- N. di circuiti accordati
- 4 Circuiti Mod. Amp. (AM)
- Gamme d'onda
- Predisposto per FM ma non ha tutte le gamme AM (OM OL OC).
- Tensioni di funzionamento
- Alimentazione universale (doppia: CC/CA) / 220 Volt
- Altoparlante
- AP magnetodinamico (magnete permanente e bobina mobile)
- Materiali
- Mobile in legno
- Radiomuseum.org
- Modello: Spezialsuper 50 SB391GW) - Siemens & Halske, -Schuckert
- Forma
- Soprammobile con qualsiasi forma (non saputo).
- Dimensioni (LxAxP)
- 430 x 290 x 220 mm / 16.9 x 11.4 x 8.7 inch
- Annotazioni
- Berlin; [FS1949 12+14]
- Peso netto
- 5.7 kg / 12 lb 8.9 oz (12.555 lb)
- Prezzo nel primo anno
- 258.00 DM
- Fonte dei dati
- Illustrierter Rundfunk Kat. 1949 / Radiokatalog Band 1, Ernst Erb
- Riferimenti schemi
- Lange-Nowisch
- Bibliografia
- Funk-Technik (FT) (5005)
- Letteratura / Schemi (1)
- -- Original-techn. papers.
- Bibliografia immagini
- Das Modell ist im «Radiokatalog» (Erb) abgebildet.
- Altri modelli
-
In questo link sono elencati 2543 modelli, di cui 2154 con immagini e 1347 con schemi.
Elenco delle radio e altri apparecchi della Siemens (& Halske, -Schuckert Werke SSW, Electrogeräte); Berlin, München
Collezioni
Il modello Spezialsuper 50 fa parte delle collezioni dei seguenti membri.